Reforma Integral · Prosperidad


Cliente:Particular
Año de ejecución: 2021
Superficie 100 m2

Reforma integral - Prosperidad

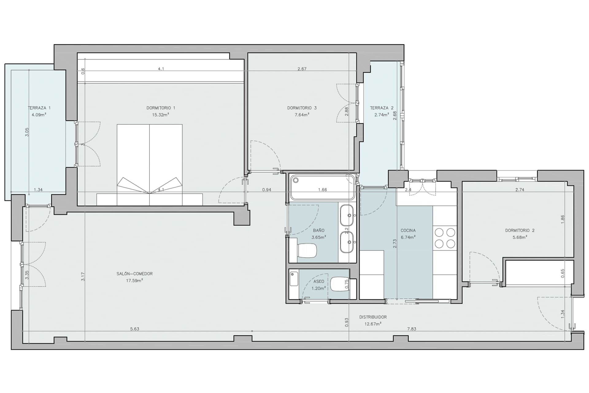
Reforma integral realizada en el barrio de Prosperidad, en el centro de Madrid. Se llevó a cabo el cambio de distribución de los dormitorios con armarios empotrados, baños y cocina. Ampliando así, las dimensiones del salón, habitaciones y baños. Finalizamos con sustitución de toda la carpintería del piso; puertas, tarima, lacado y puerta principal.

Cliente Particular
Año de ejecución 2021
Superficie 100 m2
Nº Habitaciones 3
Nº Baños 2
AnteriorReforma integral
SiguienteReforma integral