Reforma Integral · Hortaleza


Cliente:Particular
Año de ejecución: 2024
Superficie 100 m2

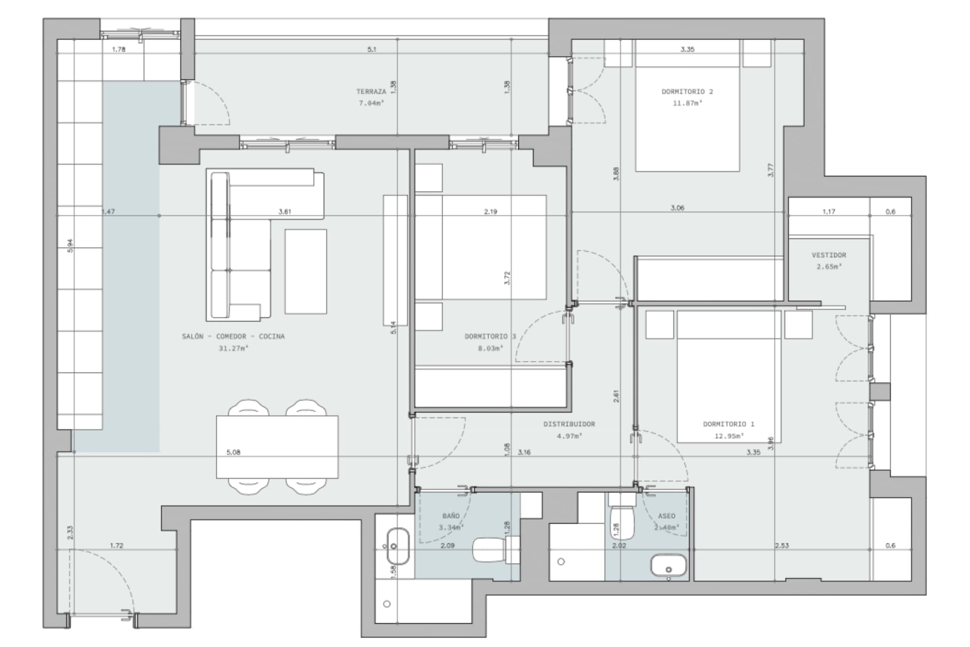
Reforma integral - Hortaleza, Madrid

Reforma integral para particular llevada a cabo en la zona norte de Madrid, en Hortaleza. Cambio al completo de toda la instalación de fontanería, aerotermia con suelo radiante/refrescante con apoyo de aire por conducto y electricidad. Eliminación del gotelé de toda la vivienda, cambio de distribución, climatización y carpintería. Montaje de mobiliario, baños, sanitarios y cocina.

Cliente Particular
Año de ejecución 2024
Superficie 100 m2
Nº Habitaciones 3
Nº Baños 2
AnteriorReforma integral
SiguienteReforma integral