Reforma Integral · Móstoles


Cliente:Inversor
Año de ejecución: 2026
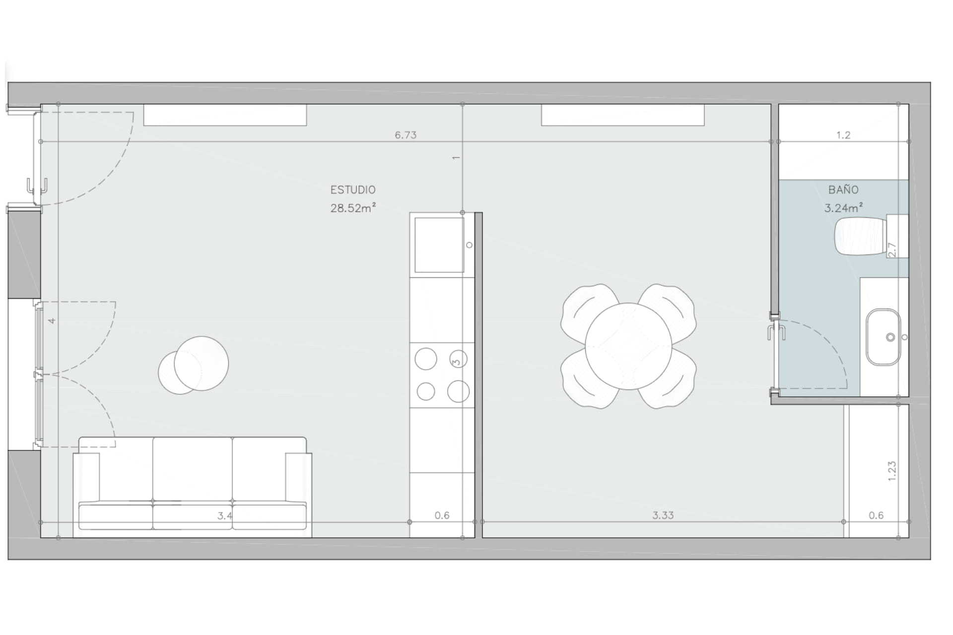
Superficie 32 m2

Reforma integral - Móstoles

Reforma integral realizada para un estudio de trabajo profesional en Móstoles, en el sur de Madrid. Se llevó a cabo el cambio de distribución en salón, cocina y baño. Sustitución de toda la instalación de electricidad, calefacción y fontanería. Aislamiento de todo el inmueble tanto en el interior como en el exterior (fachada). Finalizamos con trabajos de carpintería exterior, climatización y sustitución de ventanas a PVC.

Cliente Inversor
Año de ejecución 2026
Superficie 32 m2
Nº Habitaciones 0
Nº Baños 1
AnteriorReforma integral
SiguienteReforma integral