Reforma Integral · Prosperidad


Cliente:Particular
Año de ejecución: 2023
Superficie 57 m2

Reforma integral - Prosperidad

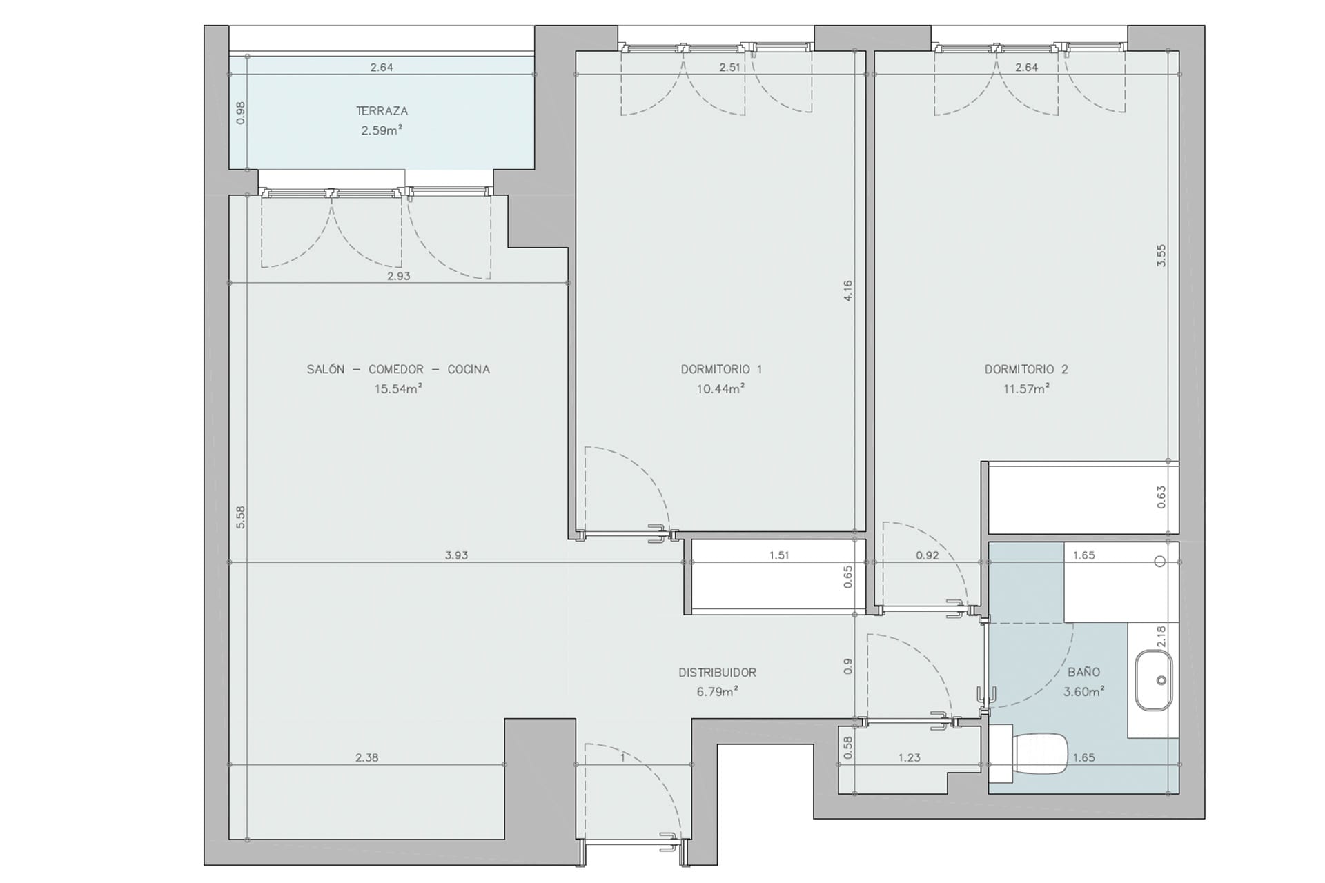
Reforma integral realizada en un piso en la zona se Prosperidad, en Madrid. Se llevó a cabo el cambio de distribución en salón, cocina, pasillo y habitaciones. Sustitución de toda la instalación de electricidad y fontanería. Finalizamos con trabajos de carpintería en armarios empotrados, instalación de aire acondicionado, terraza y sustitución de ventanas a PVC.

Cliente Particular
Año de ejecución 2023
Superficie 57 m2
Nº Habitaciones 2
Nº Baños 1
AnteriorReforma integral
SiguienteReforma integral